Inwestycje


    Piątek 4 września 2020

    „Przebudowa i zmiana sposobu użytkowania dworca w Wielopolu Skrzyńskim – Etap I”

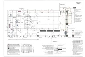
    Gmina Wielopole Skrzyńskie wedle wcześniej przygotowanej koncepcji modernizacji budynku dworca w Wielopolu Skrzyńskim przystąpiła do realizacji I etapu prac.

    Ze względu na duże koszty inwestycji Prace będą realizowane w etapach.


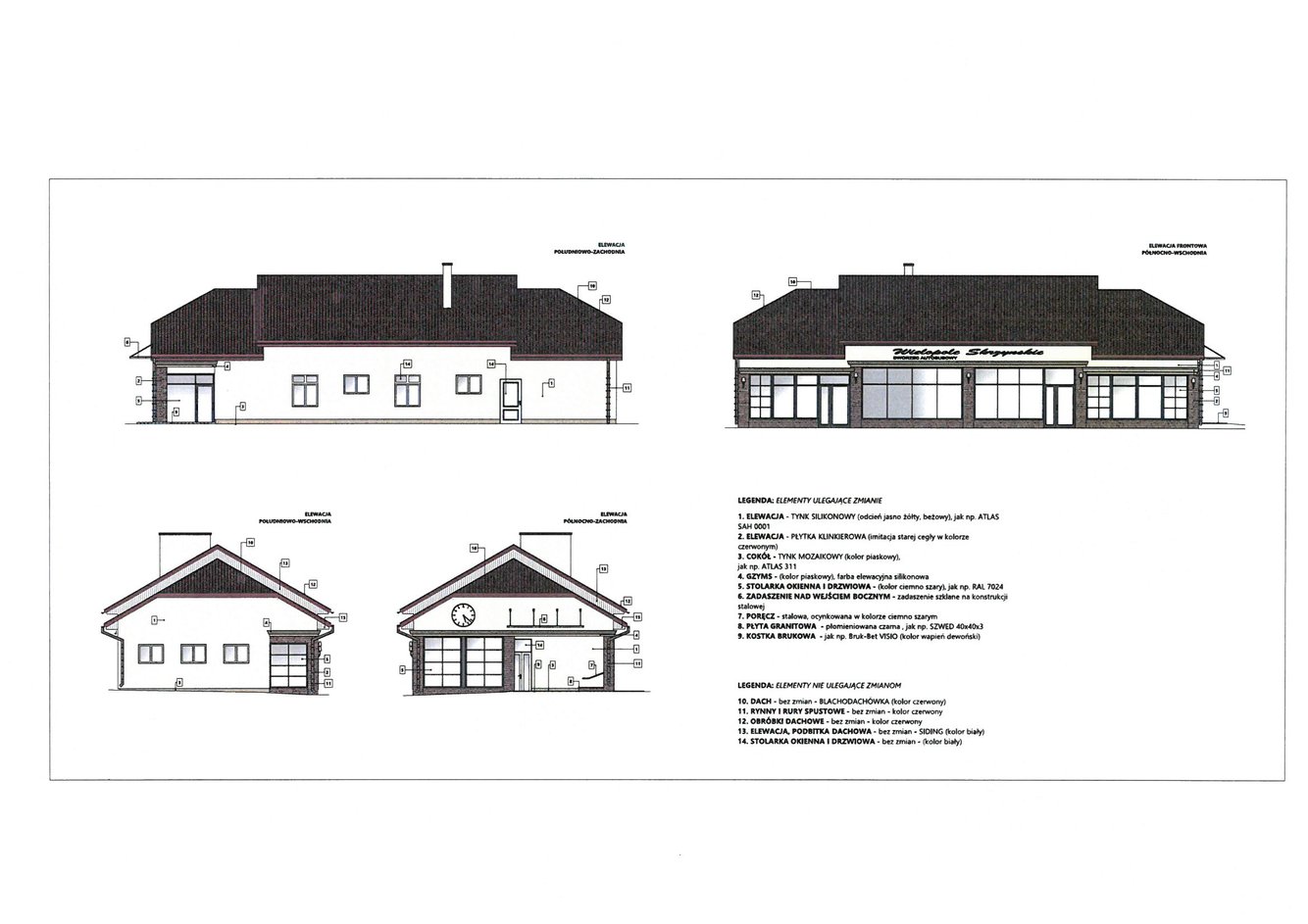
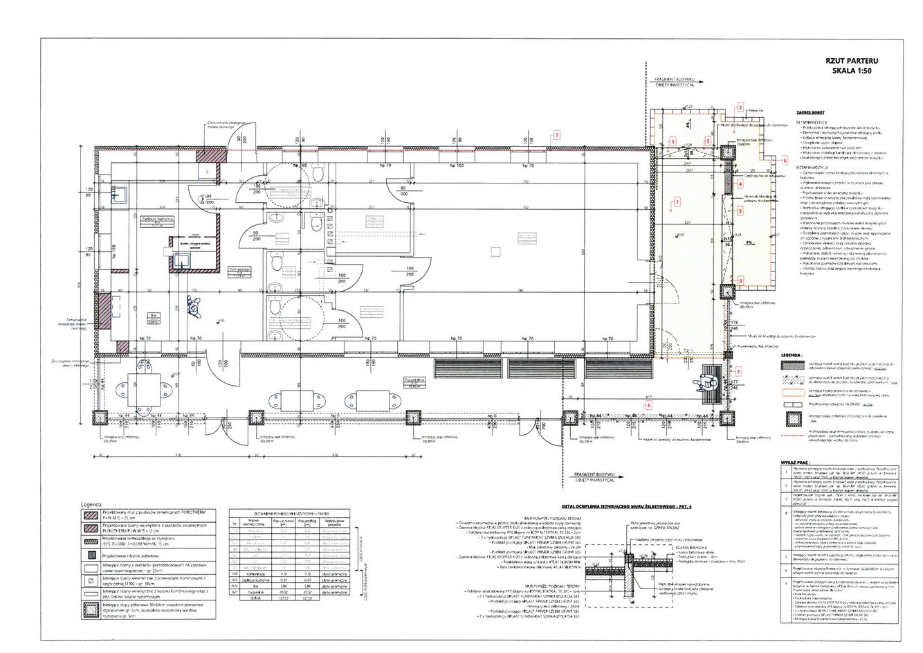
    Obecnie budynek dworca pełni dwie funkcje. Pierwszą cześć budynku stanowi lokal gastronomiczny, natomiast druga część to poczekalnia dla osób podróżujących komunikacją publiczną.

    W bieżącym roku Gmina Wielopole Skrzyńskie prowadzi prace związane z częścią budynku w której zorganizowany jest lokal gastronomiczny.

     

    W ramach I etapu prac zostaną wykonane następujące prace:

    - izolacja części ścian fundamentowych,

    - wykonanie opaski drenażowej na remontowanym odcinku,                                                                                       

    - modernizacja murków oraz filarów (remont, izolacja, ocieplenie),                                                                           

    - wykonanie nawierzchni z kostki brukowej betonowej,    

    - przełożenie części kostki brukowej na płycie rynku w celu wykonania podjazdu do lokalu gastronomicznego dla potrzeb dostaw towarów,

    - wykonanie odwodnienia powierzchniowego,

    - roboty budowlane towarzyszące.

     

    Koszt inwestycji to 56 889,27 zł brutto. – budżet Gminy Wielopole Skrzyńskie

    Termin wykonania: 30.09.2020r.